面包屑导航栏请使用tab按钮切换浏览
首页
政务
政府文件
委办局
规划资源局
重点工作
公示公告
方案
正文内容区域请使用tab按钮切换浏览
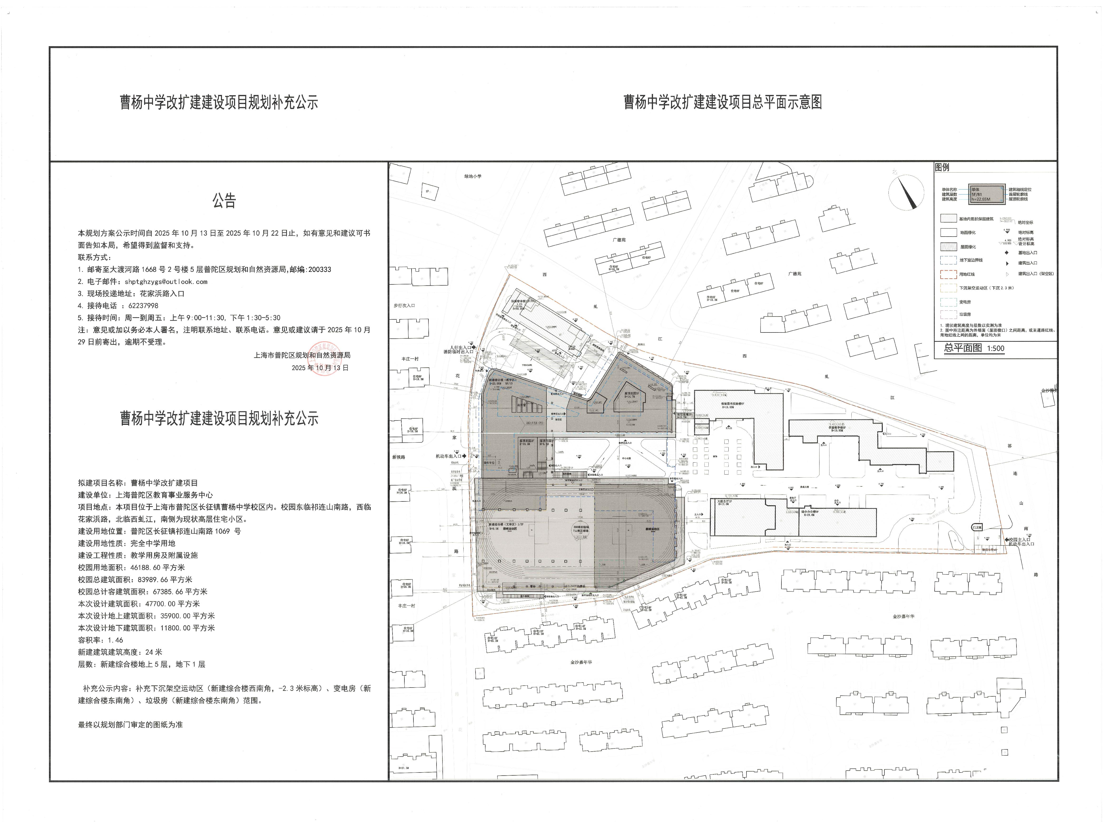
曹杨中学改扩建建设项目规划补充公示
2025年10月13日
来源: 上海普陀
相关附件
补充公示图.pdf
分享:
打印本页
关闭窗口
特殊稿件右侧区域内容请使用tab按钮切换浏览
相关推荐