面包屑导航栏请使用tab按钮切换浏览
首页
政务
政府文件
委办局
规划资源局
重点工作
公示公告
方案
正文内容区域请使用tab按钮切换浏览
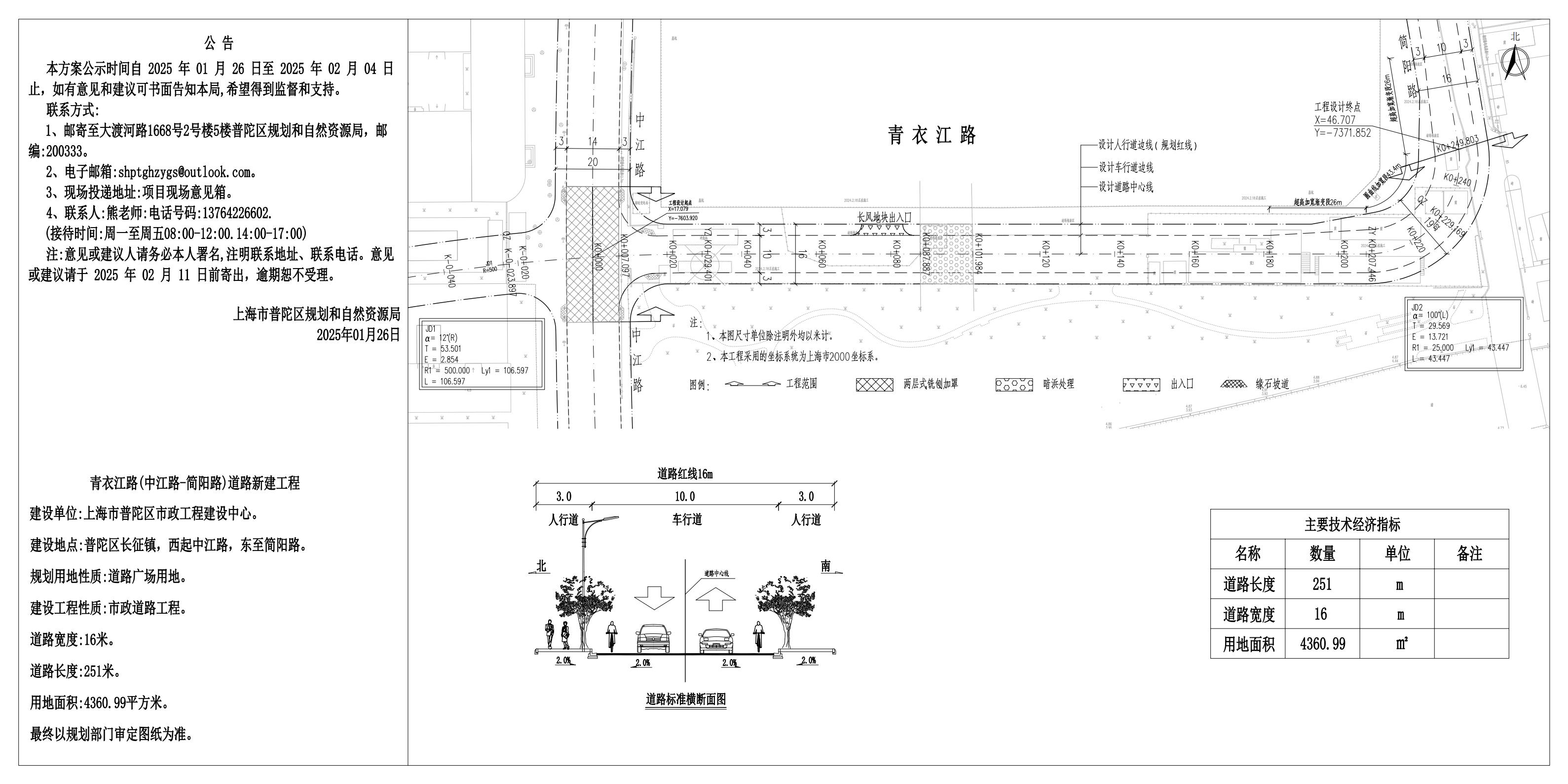
青衣江路(中江路-简阳路)道路新建工程方案公示
2025年01月26日
来源: 上海普陀
分享:
打印本页
关闭窗口
特殊稿件右侧区域内容请使用tab按钮切换浏览
相关推荐